


Được niêm yết bởi CENTURY 21 Edwards Realty
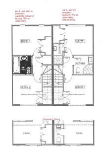
Nhà độc thân để bán tọa lạc tại 3/75 Vincent Street, Howick, Auckland 2014, New Zealand hiện đang để bán.3/75 Vincent Street, Howick, Auckland 2014, New Zealand được niêm yết cho$819,000 Asking Price.Bất động sản này có 2 phòng ngủ, 2 phòng tắm đặc điểm.
$819,000 Asking Price
Nhà bán nhà để bán, 3/75 Vincent Street, Howick, Auckland 2014, New Zealand
- Số MLS582744
- Phòng ngủ2
- Phòng tắm2
- Kích thước nhà ở/lô đất
74 m²
Đặc trưng của bất động sản
Bất động sản
- Quy mô bất động sản:
74 m²
Lô/Đất
- Diện tích đất/lô đất:
193 m²
Phòng ngủ
- Phòng ngủ: 2
Phòng tắm
- Tổng số phòng tắm: 2
Mô tả
$819,000
This lovely, brand new 2-bedroom freehold family home with all the mod cons is seriously for sale.
The house is completed and landscapers are getting ready to complete the project.
You can own this brand new family home boasting 2 double bedrooms, 2 toilets and 2 bathrooms, heat pump and all your modern chattels. It also comes with car parking.
Don't wait for house prices to rise in 2025 so call Dave today on 021 945 910 to arrange a viewing.
Vị trí
3/75 Vincent Street, Howick, Auckland 2014, New Zealand