



Inserito da CENTURY 21 RBマネジメント (宅建免許番号:東京都知事(2)100553)
L'immobile Proprietà commerciale situato all'indirizzo 瀬戸, 横浜市金沢区, Kanagawa 236-0027, Giappone è attualmente in affitto.瀬戸, 横浜市金沢区, Kanagawa 236-0027, Giappone viene quotata per2.903 USD.
2.903 USD
451.000 JPY
Affitto uso commerciale, 瀬戸, 横浜市金沢区, Kanagawa 236-0027, Giappone
- Numero MLS167601-2491c
- Spazio minimo vendibile
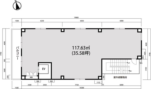
118 m²
Caratteristiche dell'immobile
Proprietà
- Superficie immobile:
118 m²
Costruzione
- Anno di costruzione: 2022
Descrizione
【情報更新日】:2025年07月12日, 【有効期限】:2025年07月19日, 【沿線】:京浜急行電鉄本線, 【最寄駅】:金沢八景, 【徒歩】:1分, 【管理費】:19,360円, 【礼金】:なし, 【敷金】:5ヶ月, 【敷引】:20%, 【更新料新旧区分】:新賃料, 【更新料】:1ヶ月, 【保険契約期間(年)】:3年, 【保険要否】:加入要, 【建物構造】:鉄骨造, 【築年月】:2022年07月, 【借家権種類】:普通借家権, 【ガス】:都市ガス, 【水道】:公営水道, 【汚水】:公共下水, 【雑排水】:公共下水, 【風呂】:無, 【トイレ】:水洗, 【取引態様】:代理, 【引渡条件】:即引渡し可, 【契約期間】:3年, 【部屋現況】:空き, 【賃貸保証】:加入要, 【賃貸保証料】:100%, 【賃貸保証内容】:初回保証料:賃料等合計の100%、以降継続保証料:賃料等合計の10%, 【保証人代行会社】:ジェイリース株式会社, 【物件コード】:167601-2491c
Località
瀬戸, 横浜市金沢区, Kanagawa 236-0027, Giappone